You need a free account to view images
Estimated value range
2
1
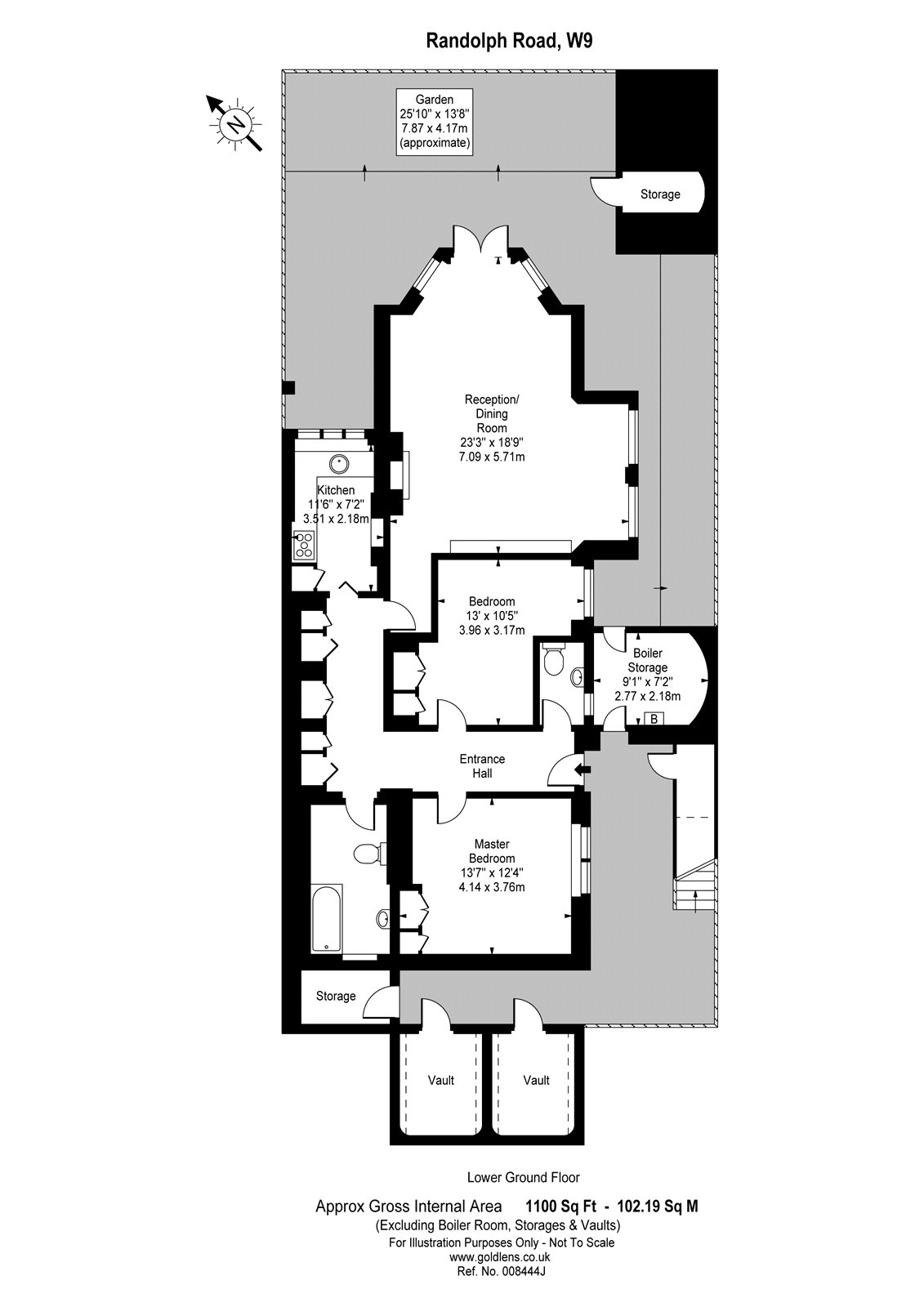
1033 sqft
Below ground floor apartment
Looking for a mortgage? Share your details and our mortgage partners at Habito will contact you with options that match your needs - whether you're buying your first home, remortgaging, or moving up the ladder.
In partnership with
A 2 bedroom apartment in London with leasehold lease. Its current energy rating is D.
House type
Apartment
Lease type
leasehold
EPC rating
Built surface
969 sqft
Roof type
Chimnie ipsum
Roof material
Chimnie ip
Construction material
Chimnie ipsum dolor
Window glazing
Chimnie ipsum dol
Heating type
Chimnie ipsum dolor sit
Solar panels
Chi
Extension count
Ch
Basement
Chim
CO2 emissions
Chimnie ipsum do
Use our property-specific risk report to uncover potential hidden risks: from radon levels and flood risks to planning constraints and environmental factors. Gain insights usually reserved for real estate agents and make well-informed decisions built on a foundation of thorough research.
Looking for the value of this apartment at 5a, Randolph Road, London, W9 1AN? The estimated value is in the £1m - £1.1m range.
April 2026
£1m - £1.1m
May 2019
£1,200,000
Predicted rental value
Chimnie ip
Rebuild cost
Chimnie ipsum
Years owned
Chi
Monthly energy bill
Chimnie i
Do you work in insurance, finance or real estate? Tell your Head of Data that Chimnie can save businesses up to £2.5m a year with our upgraded real-time database covering every residential & commercial building in Britain.
We analyse huge amounts of data to help you find the very best neighbourhoods in the UK, based on what matters most to you. This 2 bedroom apartment in London is located in a quiet area with good access to education.
This home's location is likely to be better than 2% of homes in Britain. This is calculated by combining the scores below.
This property is likely to have better nearby education than 94% of properties in Britain. See nearby schools
Average in Britain
Better
This property is likely to be safer than 7% of properties in Britain. There were 1410 crimes within 500m in 2022.
Average in Britain
Better
This property is likely to have better nearby dining options than 97% of properties in Britain. It has 54 cafés, 307 restaurants, 35 fast food outlets and 10 pubs/bars within 1 mile. See local food and drink options
Average in Britain
Better
This property is likely to have better air quality than 3% of properties in Britain. It has recordings 10.34µg/m³ of PM2.5 air pollution particles. The UK has a legal limit of 20μg/m³. The World Health Organisation sets a limit of 5μg/m³. PM2.5 are pollution particles small enough to travel deeply into the lungs, and can cause a range of health disorders.
Average in Britain
Better
This property is likely to have safer roads than 1% of properties in Britain. There were 306 road traffic accidents within 1 mile in 2022.
Average in Britain
Better
This property is likely to be more peaceful than 54% of properties in Britain. It has a day-evening-night reading of 45 decibels.
Average in Britain
Better
This property is likely to have more natural spaces nearby than 1% of properties in Britain. Approximately 12% of the land within 1 mile is a natural space.
Average in Britain
Better
This property is likely to be closer to a supermarket than 20% of properties in Britain. The nearest supermarket to this property is 3.85 miles away. See closest supermarkets
Average in Britain
Better
This property is likely to have a lower flood risk than 22% of properties in Britain. This location has approximately 1% chance of flooding from rivers, coastal and surface water in any given year.
LOW SCORE
HIGH SCORE
Property karaoke 🎤🤘🎸
Use the dropdown to get a karaoke tour of this property, as if sung by your favourite band or musician!
5a, Randolph Road, London, W9 1AN is connected by tube. This 2 bedroom apartment in London is 0.30 miles from a petrol station and 0.13 miles from the post office.
Warwick Avenue station (0.11 miles)
Maida Vale station (0.44 miles)
Post office (0.13 miles)
Petrol Station (0.30 miles)
Distances are "as the crow flies" 🐦⬛
Restaurants
Jay's (0.12 miles)
Pubs / bars / clubs
Crocker'S Folly (0.30 miles)
Fast food
Cafes
Supermarket
Distances are "as the crow flies" 🐦⬛
Chimnie is the UK's only free property search engine. How helpful is the data we gave you for this address?
Nursery
Paddington Green Children's Centre (0.15 miles)
Primary
Good - OFSTED rating 2019
Secondary
Requires improvement - OFSTED rating 2019
University
Distances are "as the crow flies" 🐦⬛
Estimated value range
Working in Insurance, Lending, or Property?
Chimnie helps you make better property decisions.
© 2026 Little Chimney Ltd. All rights reserved.
You need a free account to view images
Estimated value range
2
1
1033 sqft
Below ground floor apartment
Looking for a mortgage? Share your details and our mortgage partners at Habito will contact you with options that match your needs - whether you're buying your first home, remortgaging, or moving up the ladder.
In partnership with
A 2 bedroom apartment in London with leasehold lease. Its current energy rating is D.
House type
Apartment
Lease type
leasehold
EPC rating
Built surface
969 sqft
Roof type
Chimnie ipsum
Roof material
Chimnie ip
Construction material
Chimnie ipsum dolor
Window glazing
Chimnie ipsum dol
Heating type
Chimnie ipsum dolor sit
Solar panels
Chi
Extension count
Ch
Basement
Chim
CO2 emissions
Chimnie ipsum do
Use our property-specific risk report to uncover potential hidden risks: from radon levels and flood risks to planning constraints and environmental factors. Gain insights usually reserved for real estate agents and make well-informed decisions built on a foundation of thorough research.
Looking for the value of this apartment at 5a, Randolph Road, London, W9 1AN? The estimated value is in the £1m - £1.1m range.
April 2026
£1m - £1.1m
May 2019
£1,200,000
Predicted rental value
Chimnie ip
Rebuild cost
Chimnie ipsum
Years owned
Chi
Monthly energy bill
Chimnie i
Do you work in insurance, finance or real estate? Tell your Head of Data that Chimnie can save businesses up to £2.5m a year with our upgraded real-time database covering every residential & commercial building in Britain.
We analyse huge amounts of data to help you find the very best neighbourhoods in the UK, based on what matters most to you. This 2 bedroom apartment in London is located in a quiet area with good access to education.
This home's location is likely to be better than 2% of homes in Britain. This is calculated by combining the scores below.
This property is likely to have better nearby education than 94% of properties in Britain. See nearby schools
Average in Britain
Better
This property is likely to be safer than 7% of properties in Britain. There were 1410 crimes within 500m in 2022.
Average in Britain
Better
This property is likely to have better nearby dining options than 97% of properties in Britain. It has 54 cafés, 307 restaurants, 35 fast food outlets and 10 pubs/bars within 1 mile. See local food and drink options
Average in Britain
Better
This property is likely to have better air quality than 3% of properties in Britain. It has recordings 10.34µg/m³ of PM2.5 air pollution particles. The UK has a legal limit of 20μg/m³. The World Health Organisation sets a limit of 5μg/m³. PM2.5 are pollution particles small enough to travel deeply into the lungs, and can cause a range of health disorders.
Average in Britain
Better
This property is likely to have safer roads than 1% of properties in Britain. There were 306 road traffic accidents within 1 mile in 2022.
Average in Britain
Better
This property is likely to be more peaceful than 54% of properties in Britain. It has a day-evening-night reading of 45 decibels.
Average in Britain
Better
This property is likely to have more natural spaces nearby than 1% of properties in Britain. Approximately 12% of the land within 1 mile is a natural space.
Average in Britain
Better
This property is likely to be closer to a supermarket than 20% of properties in Britain. The nearest supermarket to this property is 3.85 miles away. See closest supermarkets
Average in Britain
Better
This property is likely to have a lower flood risk than 22% of properties in Britain. This location has approximately 1% chance of flooding from rivers, coastal and surface water in any given year.
LOW SCORE
HIGH SCORE
Property karaoke 🎤🤘🎸
Use the dropdown to get a karaoke tour of this property, as if sung by your favourite band or musician!
5a, Randolph Road, London, W9 1AN is connected by tube. This 2 bedroom apartment in London is 0.30 miles from a petrol station and 0.13 miles from the post office.
Warwick Avenue station (0.11 miles)
Maida Vale station (0.44 miles)
Post office (0.13 miles)
Petrol Station (0.30 miles)
Distances are "as the crow flies" 🐦⬛
Restaurants
Jay's (0.12 miles)
Pubs / bars / clubs
Crocker'S Folly (0.30 miles)
Fast food
Cafes
Supermarket
Distances are "as the crow flies" 🐦⬛
Chimnie is the UK's only free property search engine. How helpful is the data we gave you for this address?
Nursery
Paddington Green Children's Centre (0.15 miles)
Primary
Good - OFSTED rating 2019
Secondary
Requires improvement - OFSTED rating 2019
University
Distances are "as the crow flies" 🐦⬛
Estimated value range
Working in Insurance, Lending, or Property?
Chimnie helps you make better property decisions.
© 2026 Little Chimney Ltd. All rights reserved.